📲Rămâi conectat la cele mai importante știri, interviuri, analize și oportunități din mediul de afaceri / antreprenoriat. Urmărește Club Antreprenor pe WhatsApp.
👉 Abonează-te la Club Antreprenor pe WhatsApp.
Cum poți avea o locuință modernă, funcțională și eficientă fără să plătești pentru spații de care nu te folosești? La UP Studio Project, folosim un principiu simplu dar extrem de eficient: optimizarea spațiilor de circulație și integrarea funcțiunilor în zonele de zi. Este unul dintre cele mai puternice „secrete profesionale” pe care le aplicăm în majoritatea proiectelor noastre rezidențiale.
Holurile și casa scării: spații care costă, dar nu aduc valoare directă
Într-o casă standard, zona de circulație (holuri + casa scării) reprezintă aproximativ 10% din suprafața utilă. Noi reușim să reducem acest procent sub 5%, fără să sacrificăm funcționalitatea sau estetica.
Ce înseamnă asta în cifre?
Să luăm exemplul unei case cu 150 mp utili:
– În mod clasic: 10% înseamnă 15 mp dedicați doar circulației.
– În proiectele noastre: 5% înseamnă 7,5 mp.
Diferența: 7,5 mp economisiți.
Dacă luăm un cost mediu de construcție de 800–1.200 €/mp, înseamnă că poți economisi între 6.000 și 9.000 de euro doar printr-o proiectare inteligentă.
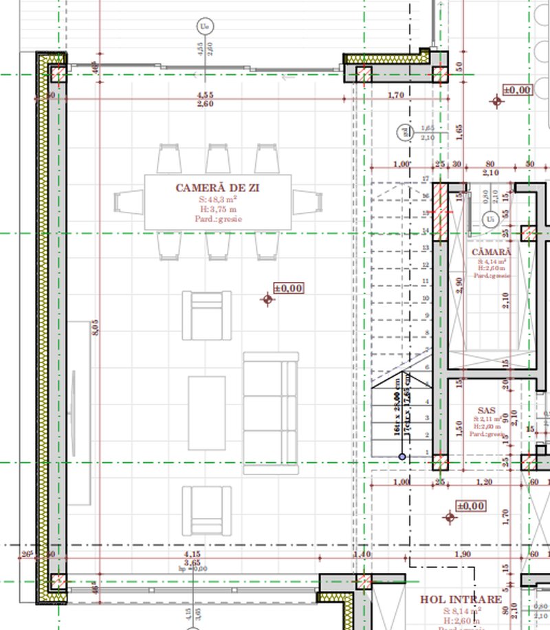
Livingul central și casa scării integrată = spațiu dublu utilizat
Amplasăm casa scării în living, iar livingul devine spațiul central din care se face accesul către: antreu, bucătărie, terasă, etaj. Astfel, în loc să ai un living de 30 mp + 5 mp hol, poți avea un living de 35 mp (mai generos), sau un living de 30 mp fără hol (și economisești 5 mp → 4.000–6.000 €).
Bucătăria open space – eficiență și senzație de spațiu mare
Prin integrarea bucătăriei într-un open space cu livingul, poți reduce suprafața alocată bucătăriei la 10–12 mp, fără ca ea să pară mică. Împreună cu livingul, zona de zi poate avea 40, 50 sau chiar 60 mp, în funcție de preferințe — iar spațiul va fi perceput ca unitar, deschis și luminos.
Avantaje directe:
– economie de spațiu construit
– senzație de deschidere și confort
– buget redus pentru finisaje și instalații
Cât poți economisi în total?
✅ Holuri optimizate: până la 9.000 €
✅ Eliminare hol living: 4.000–6.000 €
✅ Open space bucătărie: 2.000–3.000 €
Total economie potențială: între 10.000 și 18.000 € (în funcție de suprafață și nivelul de finisaje)
Concluzie: Proiectarea inteligentă face diferența
Nu e nevoie de o casă mai mare, ci de o casă mai bine gândită. Prin reducerea spațiilor irosite și prin integrarea funcțiunilor în zonele de zi, obținem:
– locuințe moderne și eficiente
– costuri reduse cu până la 18.000 €
– confort superior și design coerent
Este un secret profesional pe care îl aplicăm constant — pentru că știm că fiecare metru pătrat contează.
Arh. Enacopol Razvan












